Welcome to the official website of Shanghai Sid Electric Co., Ltd.!
您当前的位置:首页 > Product Center > Eaton(Cooper) > 调压分接开关 35kV 300A Tap Changer Switch
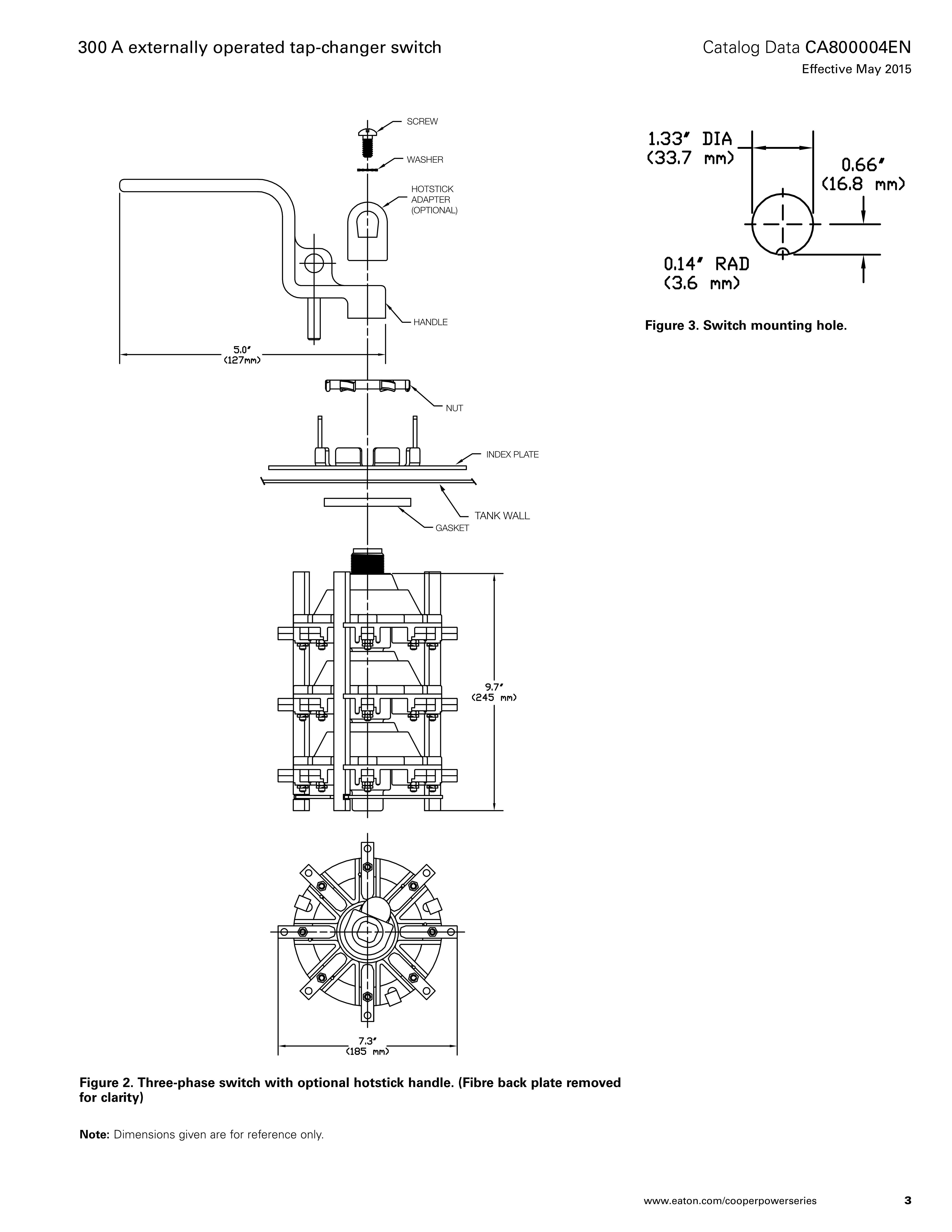
Eaton(Cooper)无励磁调压分接开关 35kV 300A Externally Operable One, Two, & Three-Phase Tap Changer Switch
Eaton eliminates many of the hazards associated with manual internal tap changing of distribution transformers with its Cooper Power™ series 300 A externally operated tap-changer switch because line crews need not be exposed to high voltage conductors and hot transformer fluids. They also eliminate the need to dismount poletype transformers for voltage adjustment and prevent exposure of the transformer tank interiors to contamination. The switches are designed for use in distribution transformers filled with transformer oil, Envirotemp™ FR3™ fluid or an approved equivalent.
Tap-changers are available with lever and hotstickoperable handles with an indexing screw to ensure complete, positive switch contact.
The switch shaft is made of a high strength glassreinforced nylon and is sealed against leakage by two high temperature resistant Viton® O-rings.The switch body and rotor are made of a glassreinforced polyester. The snap-action bridge roller contact ensures complete, positive switch throw.
All contacts are silver plated. The easily readable index plate provides positive contact positioning and positive stops, restricting the handle throw to five or seven positions.




Changes Brought by Integrated Tendering for Distribution Transformer Platforms
On October 10, 2015, the e-commerce platform of the State Grid Corporation of China (SGCC) released ...
UHV power equipment is poised to make major strides in its global expansion.
UHV Equipment Poised for Overseas Deployment: Insights from the Belo Monte Hydropower ProjectIn the ...
Prospect Analysis of China is Power Equipment Industry
Prospect Analysis of China’s Power Equipment Industry Power equipment serves as the foundation for ...
Multiple Nuclear Power Projects to Start Construction This Year
At the annual conference of the China Nuclear Energy Association (CNEA) held on April 22, Zhang Huaz...
