Welcome to the official website of Shanghai Sid Electric Co., Ltd.!
您当前的位置:首页 > Product Center > Eaton(Cooper) > 双电压开关 300A Dual Voltage Switch
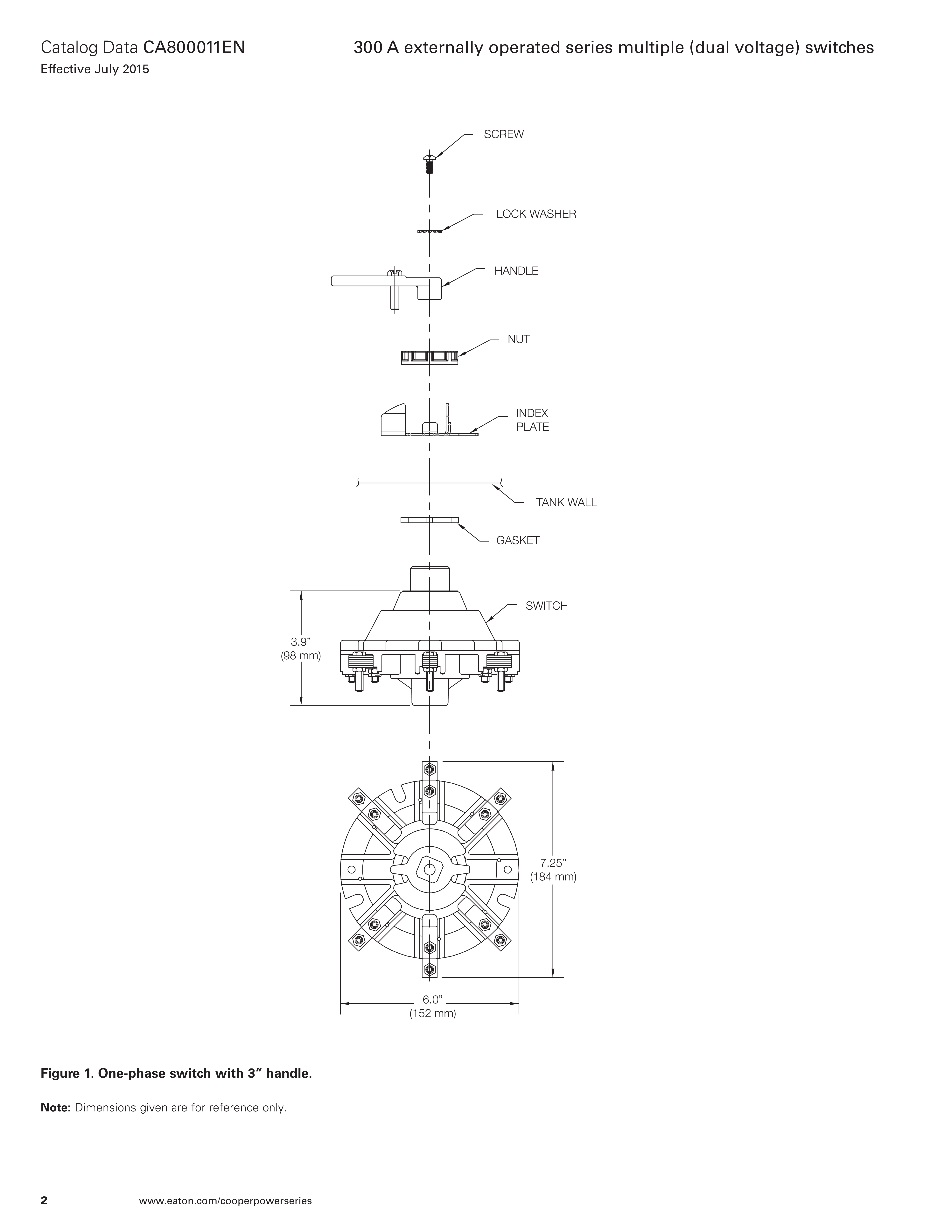
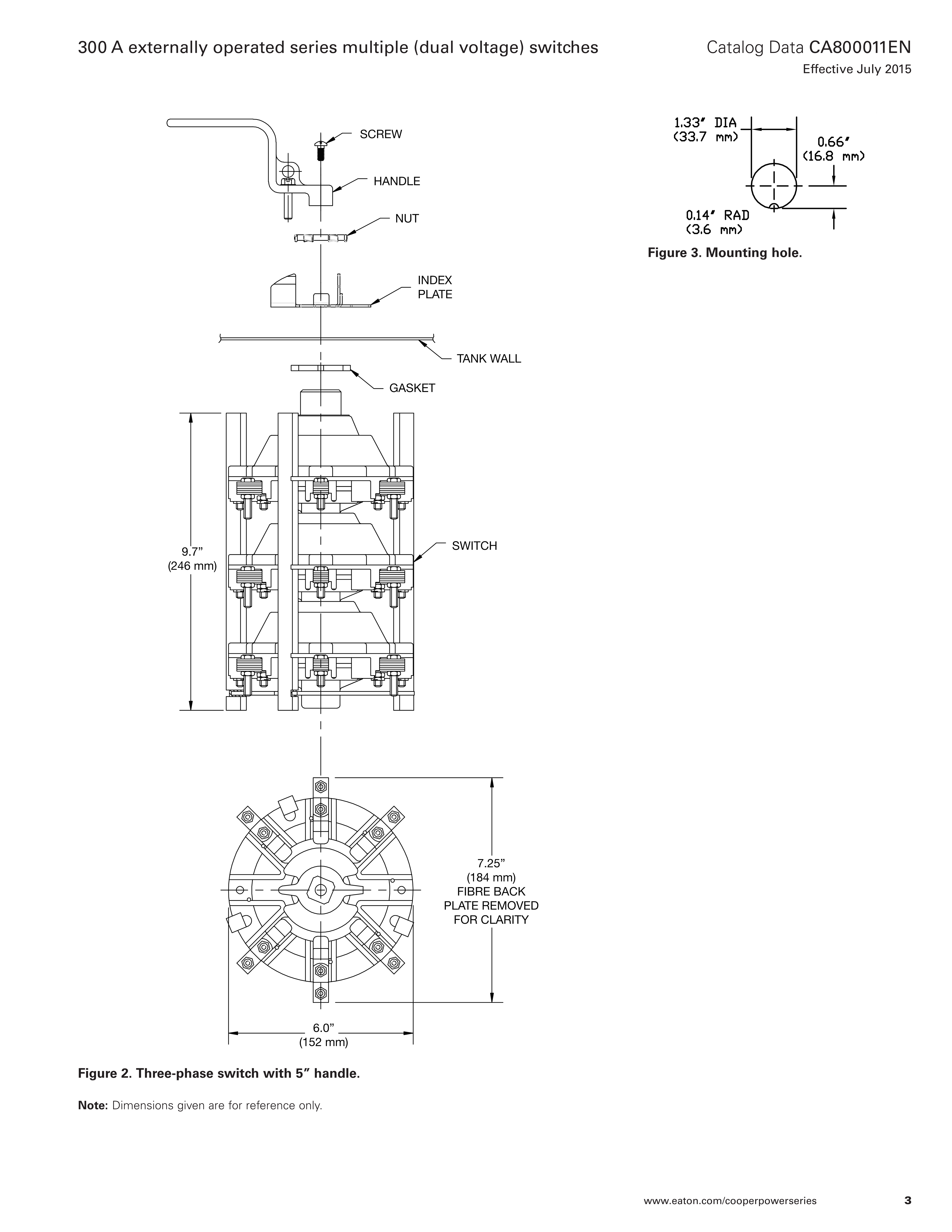
Eaton(Cooper)双电压开关 300A Externally Operated Series Multiple (Dual Voltage) Switch
Eaton uses its Cooper Power™ series 300 A externally operated series multiple switch to change connection of de-energized transformer windings between series and parallel to provide different common transformer voltage ratios. They also make it possible to stock one transformer with voltage conversion capability. The switches may be used for 3:1 or lower voltage ratios only. Ratios other than 2:1 or 3:1 may require a backplate. Tri-voltage switches are also available.
Externally operable switches eliminate many of the hazards associated with manual internal tap changing of distribution transformers because line crews need not be exposed to high-voltage conductors and hot transformer fluid. They also eliminate the need to dismount pole-type transformers for voltage adjustment and prevent exposure of the transformer tank interiors to contamination. The switches are designed for use in distribution transformers filled with transformer oil, Envirotemp™ FR3™ fluid or an approved equivalent.
Series multiple switches have pad-lockable, hotstick-operable handles, which provide greater leverage and positive indication of switch position. The switch shaft is made from high strength steel and is sealed against leakage by two high temperature resistant Viton® O-Rings. The switch body and rotor are made of a glass-reinforced polyester. The spring tempered high conductivity copper pinch-type rotor contacts provide dependable self-cleaning action.




Changes Brought by Integrated Tendering for Distribution Transformer Platforms
On October 10, 2015, the e-commerce platform of the State Grid Corporation of China (SGCC) released ...
UHV power equipment is poised to make major strides in its global expansion.
UHV Equipment Poised for Overseas Deployment: Insights from the Belo Monte Hydropower ProjectIn the ...
Prospect Analysis of China is Power Equipment Industry
Prospect Analysis of China’s Power Equipment Industry Power equipment serves as the foundation for ...
Multiple Nuclear Power Projects to Start Construction This Year
At the annual conference of the China Nuclear Energy Association (CNEA) held on April 22, Zhang Huaz...
