Welcome to the official website of Shanghai Sid Electric Co., Ltd.!
您当前的位置:首页 > Product Center > Eaton(Cooper) > 过电流隔离片 23kV Isolation Link
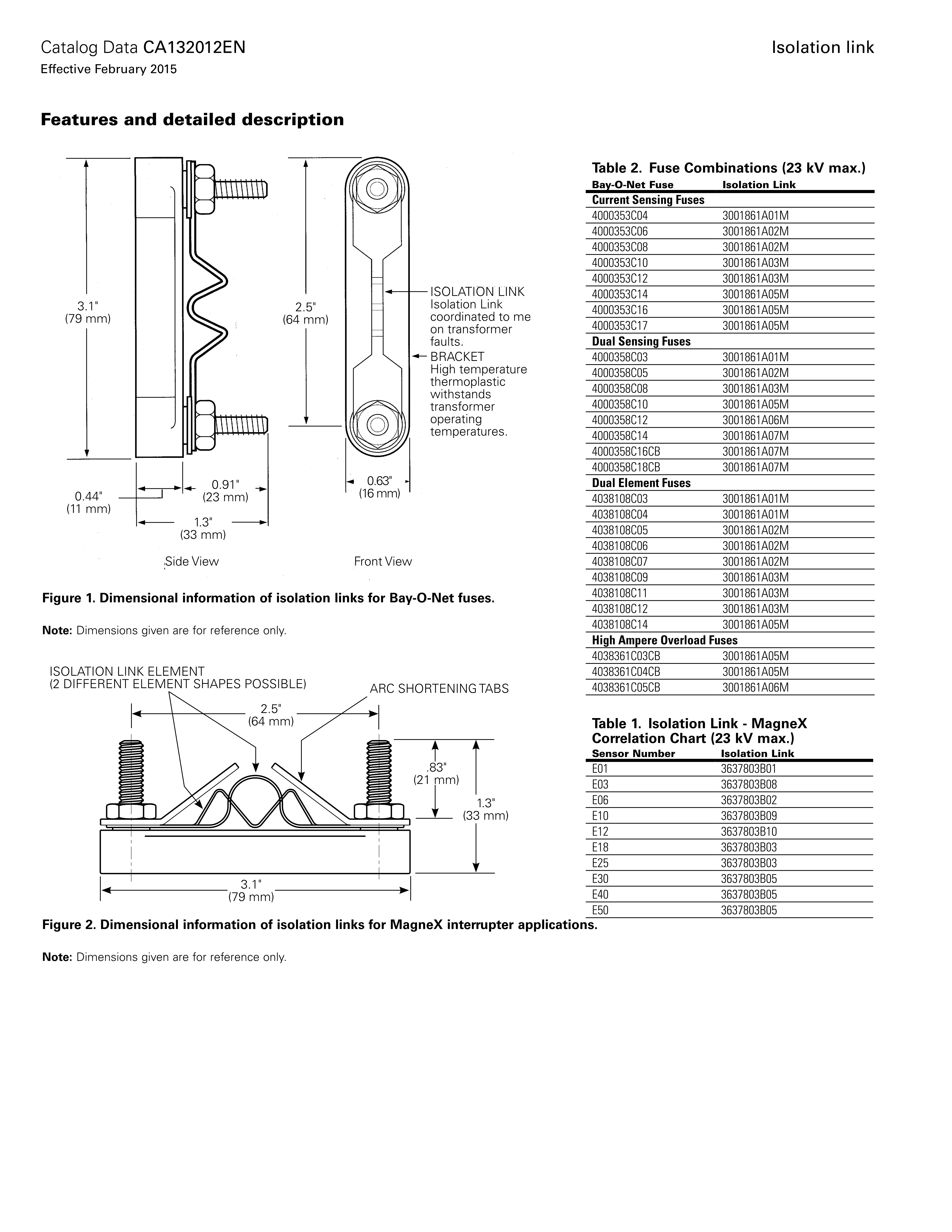
Eaton(Cooper)过电流隔离片 23kV Isolation Link(3001861A Series)
Eaton provides extra protection during refusing and switching operations when used in series with isolation links from its Cooper Power™ series Bay-O-Net type fuse or its Cooper Power series MagneX™ interrupter.
Isolation links are not fuses and do not have an interrupting rating. During a transformer failure, the isolation link will melt so that the opened primary circuit of a faulted transformer cannot be re-energized by the line crew.
Bay-O-Net assemblies
Isolation links are used in series with Eaton's Cooper Power series Bay-O-Net type expulsion fuses to provide extra protection during re-fusing operations. They are coordinated to operate at high current levels that are typical of a transformer failure.
MagneX interrupter
Isolation links are also used in series with the MagneX interrupter to provide extra protection during switching operations. The MagneX interrupter isolation link has arc shortening tabs to reduce the arc length and thus reduce the I2t energy released during operation. They are coordinated to operate at high current levels that are typical of a transformer failure.
No special tools are required. Isolation links are bolted onto Bay-O-Net fuse assemblies or MagneX interrupters in series between the primary transformer bushing and primary coil.
Refer to Service Information MN132003EN Sidewall-Mounted and Cover-Mounted Bay-ONet Fuse Assembly Installation Instructions and MN132004EN (S240-34-1) Single-Phase MagneX Interrupter Installation Instructions for details.


Changes Brought by Integrated Tendering for Distribution Transformer Platforms
On October 10, 2015, the e-commerce platform of the State Grid Corporation of China (SGCC) released ...
UHV power equipment is poised to make major strides in its global expansion.
UHV Equipment Poised for Overseas Deployment: Insights from the Belo Monte Hydropower ProjectIn the ...
Prospect Analysis of China is Power Equipment Industry
Prospect Analysis of China’s Power Equipment Industry Power equipment serves as the foundation for ...
Multiple Nuclear Power Projects to Start Construction This Year
At the annual conference of the China Nuclear Energy Association (CNEA) held on April 22, Zhang Huaz...
