Welcome to the official website of Shanghai Sid Electric Co., Ltd.!
您当前的位置:首页 > Product Center > Eaton(Cooper) > 插入式熔丝支架 23&38kV Bay-O-Net Fuse Assembly
Eaton(Cooper)插入式熔丝支架 23&38kV Sidewall & Cover Mounted Bay-O-Net Fuse Assembly (4000361C99FV,4038380B03M)
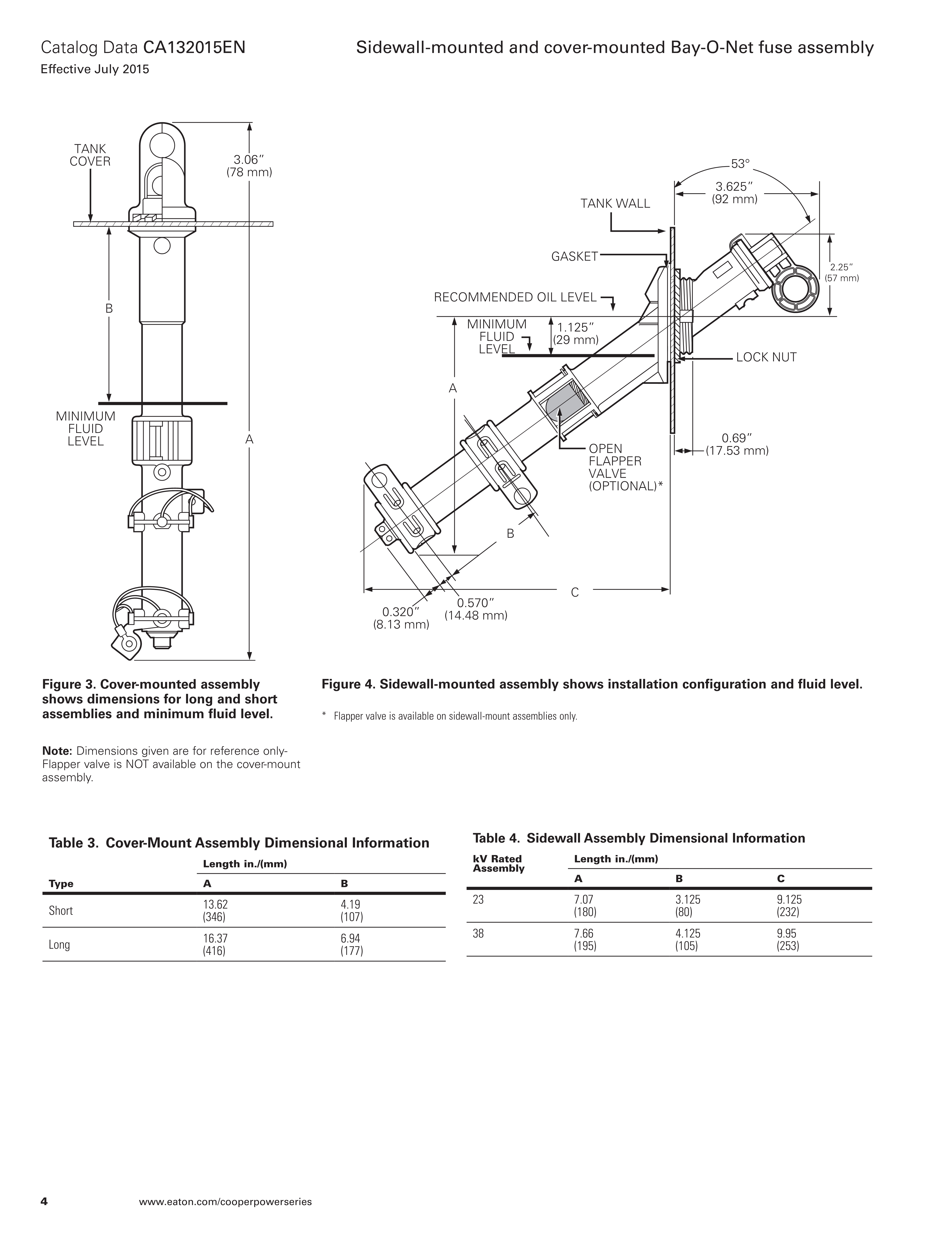
Eaton protects transformer and distribution systems with its Cooper Power™ series Bay-O-Net fuse assemblies. They are designed for use in pad-mounted or subsurface distribution transformers filled with Envirotemp™ FR3™ fluid, transformer oil or approved equivalent. The assemblies combine the ease of hotstick operation with the safety of deadfront construction.
Eaton offers its optional Cooper Power series Flapper™ valve Bay-O-Net fuse assemblies (available as sidewall-mounted only) with a flapper valve inside the housing which closes when the fuse holder is removed. (Refer to Figure 2.) This results in minimal oil spillage from the transformer tank which increases safety to line personnel during fuse changeouts, reduces potential of environmental concerns with oil spillage, reduces potential of oil contamination on the molded rubber elbow connections and reduces sensitivity to pad tilting. Silver-plated Flapper valve Bay-O-Net assemblies are available and recommended for use with the high ampere overload links. (See Catalog CA132007EN.)
Silver-plated contacts along with the high ampere overload link allow the fusing of larger kVA transformers.
For 38 kV Bay-O-Net fuse assemblies silver-plated terminals and Flapper valves are standard. (See Catalog CA132006EN for 38 kV Bay-O-Net Links.)
Removal of the fuse holder from the assembly indicates that the apparatus is electrically disconnected. It also allows convenient fuse element inspection and replacement. When typical safety practices are followed, the assemblies can be loadbreak-operated for working on the transformer secondary; changing distribution voltage with dual voltage switches or tap changers; or disconnecting the apparatus from the line.
Eaton’s Cooper Power series current sensing (Catalog CA132009EN), dual sensing (Catalog CA132010EN), dual element (Catalog CA132011EN) and high ampere overload (Catalog CA132007EN) fuse links are to be used in a Bay-O-Net fuse assembly. Eaton’s Cooper Power series 38 kV fuse links are to be used in a 38 kV Bay-O-Net fuse assembly.
The assembly must be used in series with an isolation link (Catalog CA132012EN) or current-limiting fuse, such as Eaton’s Cooper Power series ELSP (Catalog CA132013EN), to prevent the possibility of a high current fault close-in, even after the fuse link has been replaced. The 38 kV assembly must be used in series with a 38 kV current-limiting fuse.
Partial range current-limiting fuses use the low current clearing capabilities of the Bay-O-Net fuse assembly while protecting from high current internal faults that could cause disruptive equipment failure or upstream system damage.







Changes Brought by Integrated Tendering for Distribution Transformer Platforms
On October 10, 2015, the e-commerce platform of the State Grid Corporation of China (SGCC) released ...
UHV power equipment is poised to make major strides in its global expansion.
UHV Equipment Poised for Overseas Deployment: Insights from the Belo Monte Hydropower ProjectIn the ...
Prospect Analysis of China is Power Equipment Industry
Prospect Analysis of China’s Power Equipment Industry Power equipment serves as the foundation for ...
Multiple Nuclear Power Projects to Start Construction This Year
At the annual conference of the China Nuclear Energy Association (CNEA) held on April 22, Zhang Huaz...
