Welcome to the official website of Shanghai Sid Electric Co., Ltd.!
您当前的位置:首页 > Product Center > Eaton(Cooper) > 母排(铜) 600A 35kV Class Deadbreak Junction
Eaton(Cooper) 母排(铜) 600A 35kV Class Deadbreak Junction
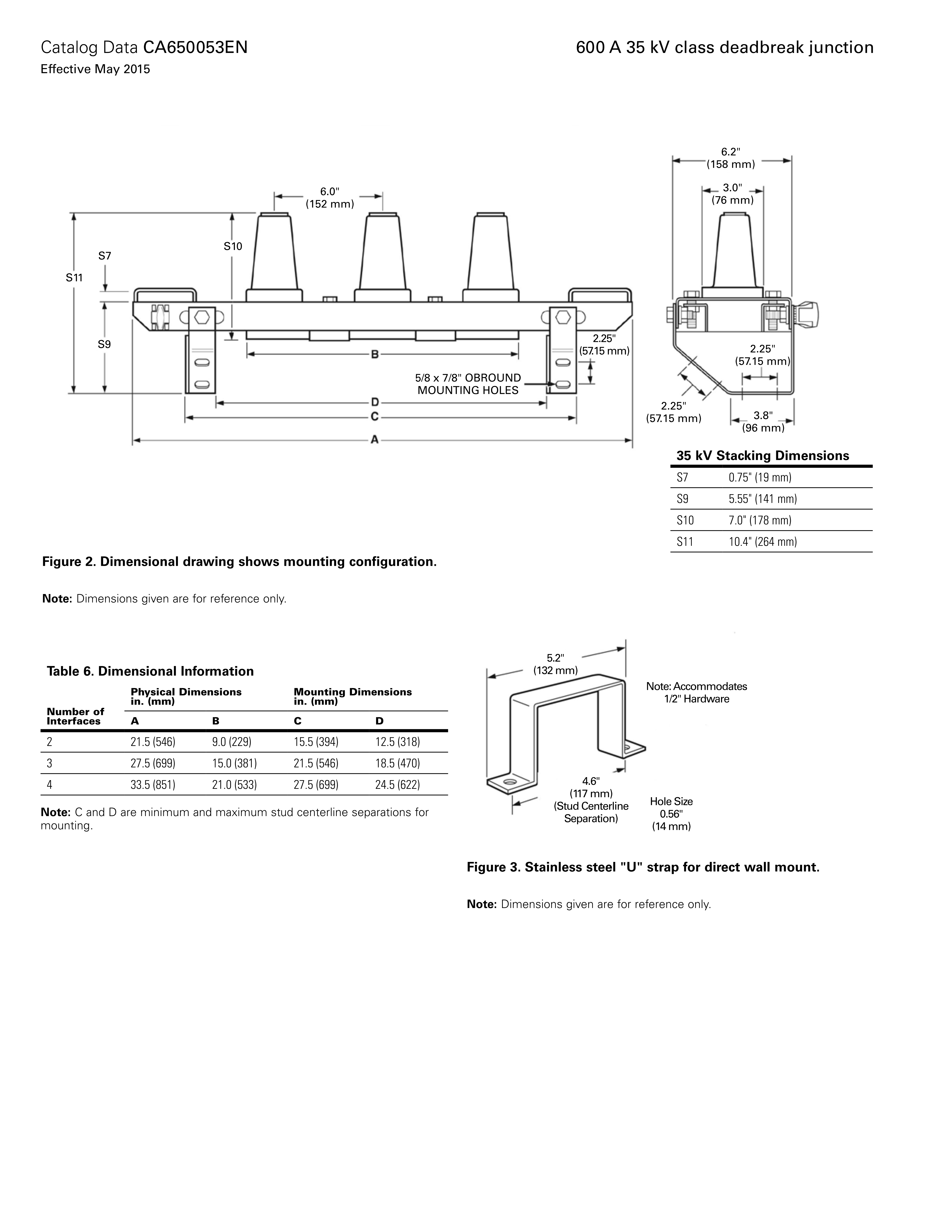
Eaton provides two, three, or four deadbreak interfaces bused together and encapsulated in a precision molded peroxide cured EPDM insulated rubber body with a semiconductive outer shield in its Cooper Power™ series 600 A, 35 kV Class deadbreak junction. Deadbreak junctions are used in pad-mounted apparatus, underground vaults, and other installations to establish loops, taps and splices, and facilitate apparatus change-outs.
Sectionalizing a cable run to find and isolate a cable fault is made easy when a deadbreak junction is used with deadbreak connectors meeting the requirements of IEEE Std 386™ --2006 standard, "Separable Insulated Connector Systems".
When mated with a comparably rated product, the junction provides a fully shielded, submersible, threaded connection for deadbreak operation.
The deadbreak junction is available with stainless steel adjustable brackets for mounting flat or at a 45° angle. Stainless steel "U" straps are available for direct wall mounting.




Changes Brought by Integrated Tendering for Distribution Transformer Platforms
On October 10, 2015, the e-commerce platform of the State Grid Corporation of China (SGCC) released ...
UHV power equipment is poised to make major strides in its global expansion.
UHV Equipment Poised for Overseas Deployment: Insights from the Belo Monte Hydropower ProjectIn the ...
Prospect Analysis of China is Power Equipment Industry
Prospect Analysis of China’s Power Equipment Industry Power equipment serves as the foundation for ...
Multiple Nuclear Power Projects to Start Construction This Year
At the annual conference of the China Nuclear Energy Association (CNEA) held on April 22, Zhang Huaz...
