Welcome to the official website of Shanghai Sid Electric Co., Ltd.!
您当前的位置:首页 > Product Center > Eaton(Cooper) > 母排(铜) 200A 25kV Class Loadbreak Junction
Eaton(Cooper) 母排(铜) 200A 25kV Class Loadbreak Junction
Eaton's Cooper Power™ series 200 A, 25 kV Class loadbreak junction provides two, three or four 15.2/26.3 kV loadbreak interfaces that are internally bused together and meet all requirements of IEEE Std 386™-2006 standard—Separable Insulated Connector Systems. Loadbreak junctions are used in pad-mounted apparatus, underground vaults, and other apparatus to sectionalize, establish loops, taps, or splices, and to facilitate apparatus changeouts. Sectionalizing a cable run to find and isolate a cable fault is made easy when a loadbreak junction is used with 25 kV Class loadbreak elbows and other accessories meeting the requirements of IEEE Std 386™-2006 standard. When mated with a comparably rated product, the junction provides a fully shielded, submersible, separable connection for loadbreak operation.
The junction has a continuous solid current path of all copper alloy. No aluminum components are used. It also has an ablative arc snuffer with superior de-ionizing properties. The body is molded of high-quality peroxide-cured EPDM insulation and has a molded on peroxide-cured semi-conductive EPDM shield.
Eaton's latch indicator ring, located on the circumference of the interface collar, eliminates the guesswork of loadbreak elbow installation on the interface. The bright yellow ring provides immediate feedback to determine if the elbow is properly installed on the junction. If the yellow ring is completely covered by the loadbreak elbow, the elbow is fully “latched.” If the ring is visible, the elbow is not fully installed, so the operator can correct it before any problems occur.
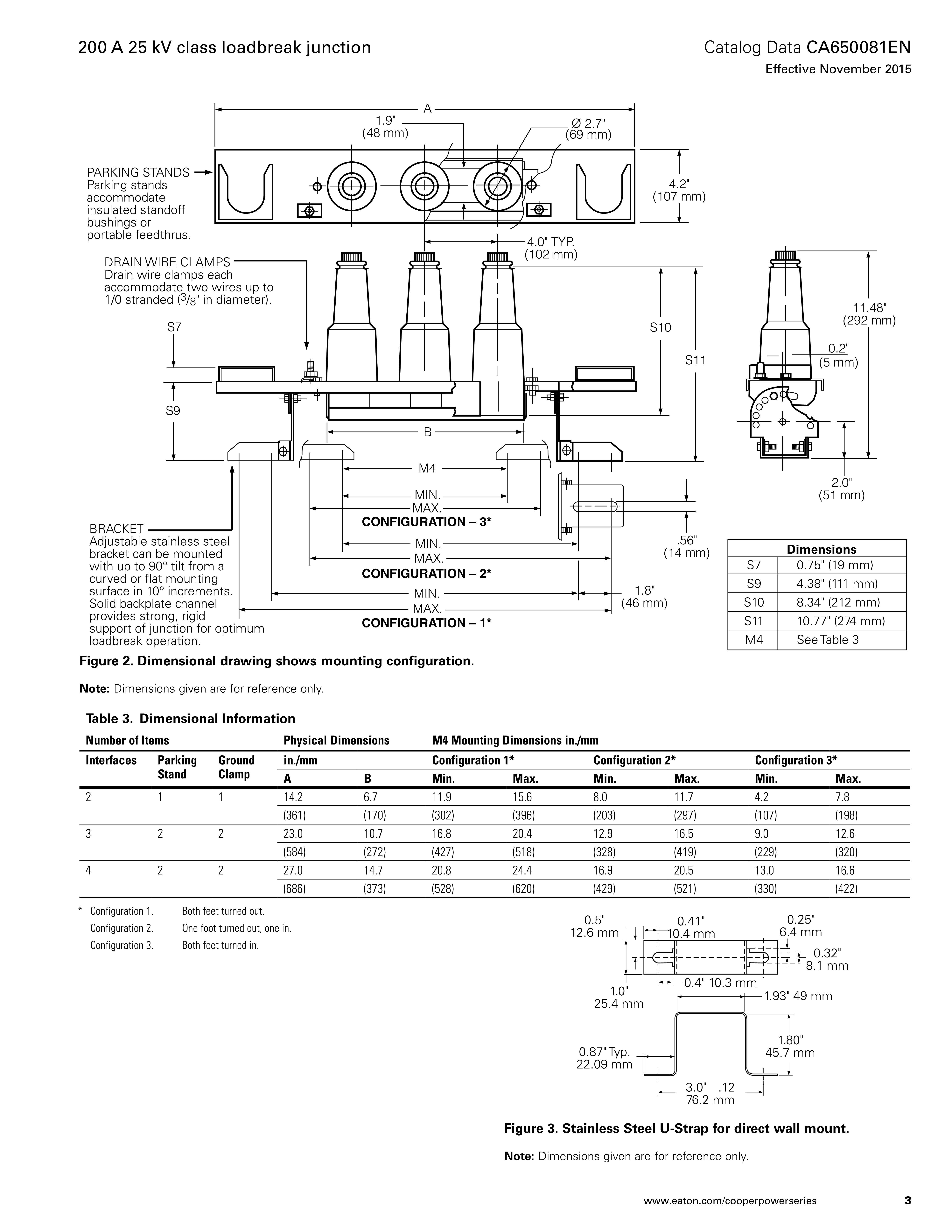
The loadbreak junction has an adjustable stainless steel bracket for mounting at various operating angles on flat or curved surfaces, with up to 90° tilt in 10° increments. The solid backplated channel provides strong, rigid support of the junction for optimum loadbreak operation. Parking stands accommodate insulated standoff bushings or portable feedthrus. Drain wire clamps can each accommodate two wires up to 1/0 stranded (3/8" diameter). Stainless steel "U" straps are available for direct wall mounting.




Changes Brought by Integrated Tendering for Distribution Transformer Platforms
On October 10, 2015, the e-commerce platform of the State Grid Corporation of China (SGCC) released ...
UHV power equipment is poised to make major strides in its global expansion.
UHV Equipment Poised for Overseas Deployment: Insights from the Belo Monte Hydropower ProjectIn the ...
Prospect Analysis of China is Power Equipment Industry
Prospect Analysis of China’s Power Equipment Industry Power equipment serves as the foundation for ...
Multiple Nuclear Power Projects to Start Construction This Year
At the annual conference of the China Nuclear Energy Association (CNEA) held on April 22, Zhang Huaz...
