Welcome to the official website of Shanghai Sid Electric Co., Ltd.!
您当前的位置:首页 > Product Center > Eaton(Cooper) > 后插避雷器 17kV Deadfront Surge Arrester
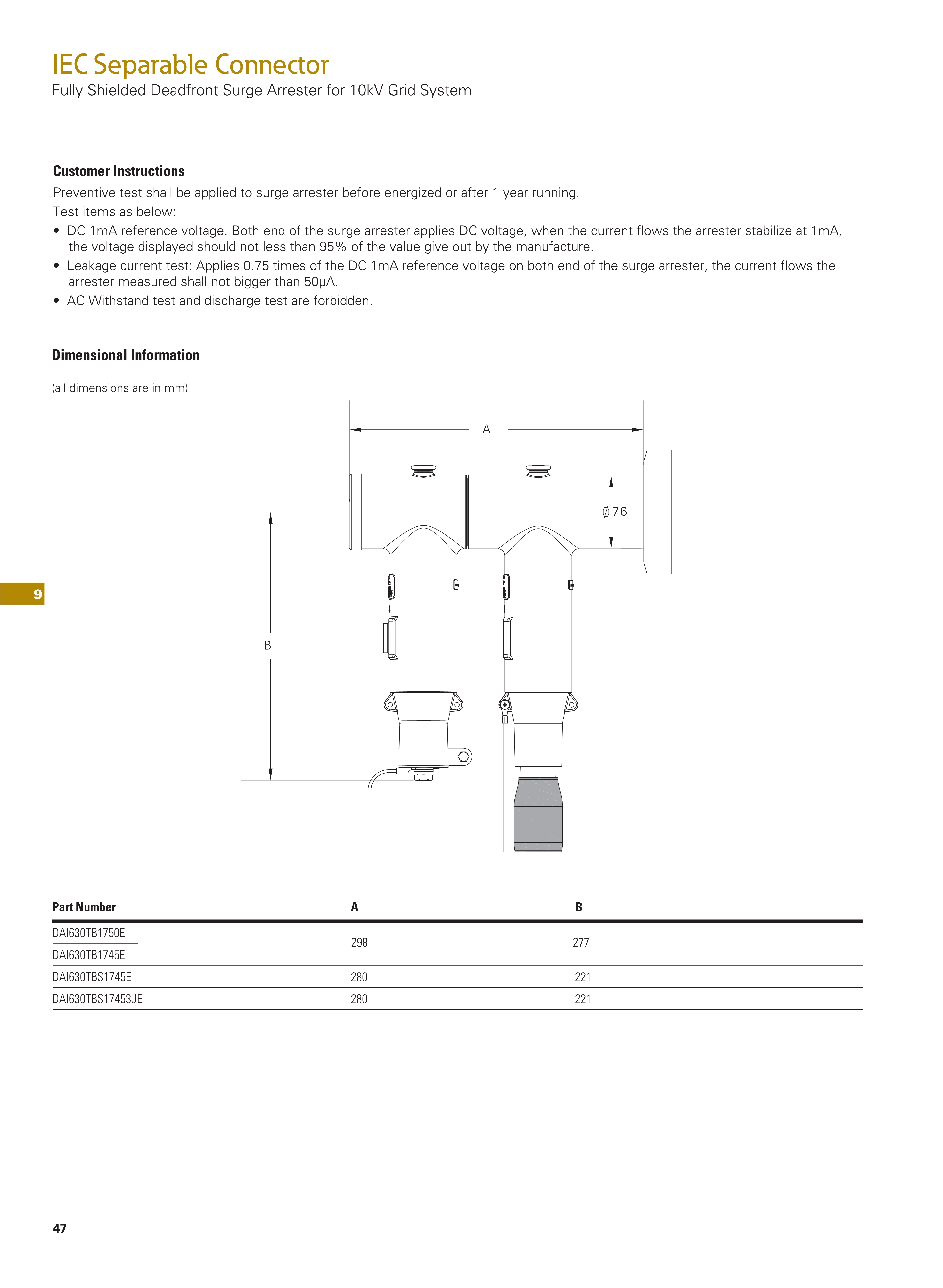
Eaton(Cooper) - 欧式后插避雷器 17kV Fully Shielded Deadfront Surge Arrester
The 17kV deadfront surge arrester combines metal (zinc) oxide varistor technology in a premolded rubber Bushing Tee to provide overvoltage system protection in an insulated, fully shielded, submersible, deadfront device.
The arrester housing interface conforms to Cooper 17.5kV Bushing Tee Specification. The arrester housing is molded of EPDM insulating rubber, which provides deadfront safety in a transformer or cabinet.17kV deadfront surge arresters are used on underground systems in transformer and entry cabinets, vaults, switching enclosures and other installations to provide shielded deadfront arrester protection.
The 17kV Deadfront Surge Arrester complies with the latest revisions of IEC 60099-4 Metal Oxide surge arresters without gaps for A.C. systems.



Changes Brought by Integrated Tendering for Distribution Transformer Platforms
On October 10, 2015, the e-commerce platform of the State Grid Corporation of China (SGCC) released ...
UHV power equipment is poised to make major strides in its global expansion.
UHV Equipment Poised for Overseas Deployment: Insights from the Belo Monte Hydropower ProjectIn the ...
Prospect Analysis of China is Power Equipment Industry
Prospect Analysis of China’s Power Equipment Industry Power equipment serves as the foundation for ...
Multiple Nuclear Power Projects to Start Construction This Year
At the annual conference of the China Nuclear Energy Association (CNEA) held on April 22, Zhang Huaz...
